bridge the gap between design & construction

Builder & Contractor Services

Our design-focused advice with a technical mindset seamlessly connects design with construction. We understand how things are built and provide practical solutions that result in beautiful spaces.

  • Bring an elevated approach to your clients

  • Incorporate a designer’s touch

  • Make your project stand out from the others

Consultations
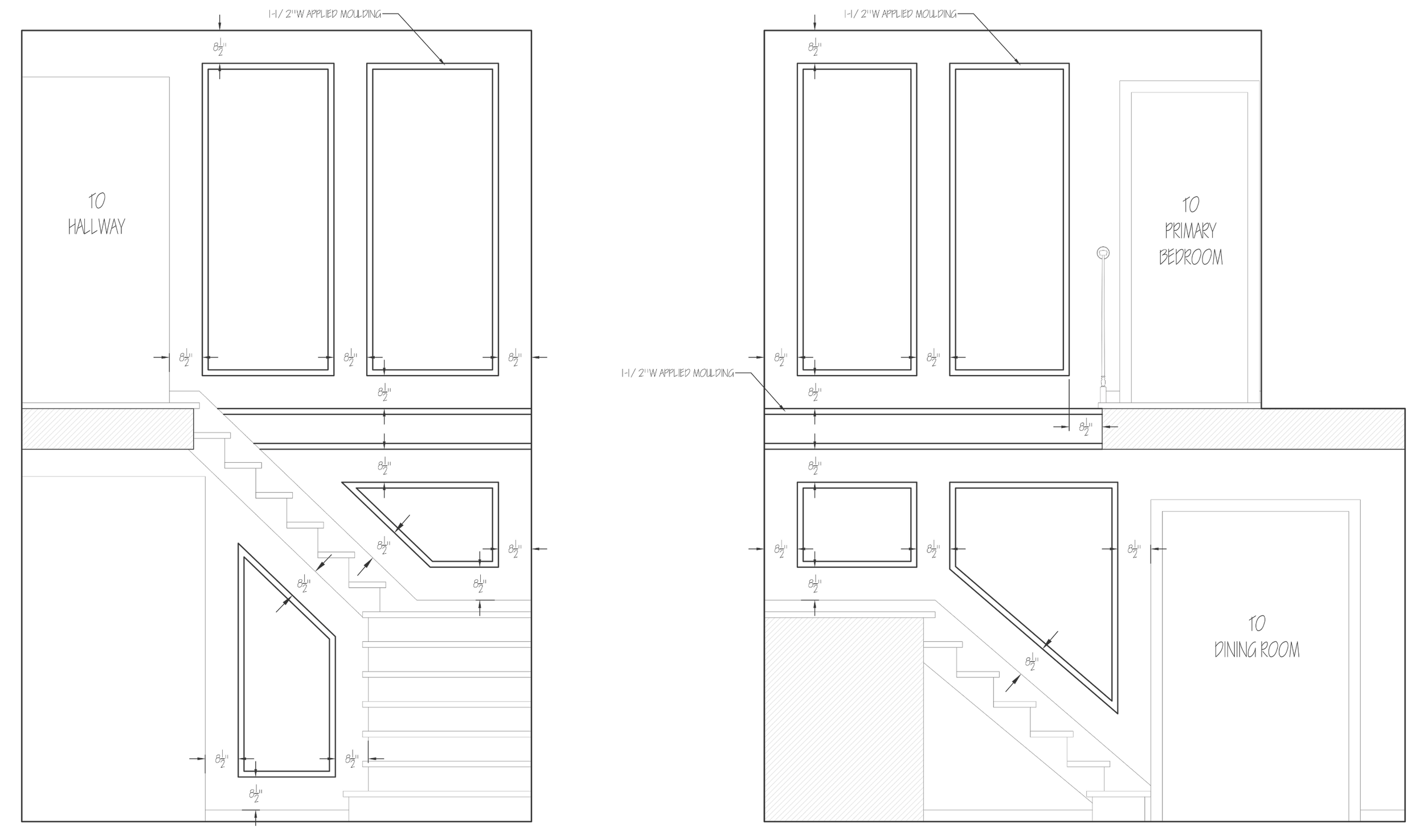
Design Drawings & Technical Details

Our deliverables are accurate, stunning and easy to digest. We can provide drawings that illustrate your proposed ideas to clients or be your design partner from start to finish. While our expertise lies in space planning, millwork, cabinetry and hard finish details, we offer referrals to incredibly talented designers that can help with any other design elements beyond our offerings.

  • Get quicker approvals from clients

  • Provide accurate technical drawings to your trades

  • Keep your project moving

Architectural drawing showing staircases, windows, room labels, and dimensions for a house interior, including hallways, bedrooms, a dining room, and details for molding and flooring.